
21
LEAKE STREET, ESSENDON

1
NINE HIGH APARTMENT, PRESTON
12
NEW QUAY WEST, DOCKLANDS

10
MURCHISON VILLAGE, ROXBURGH PARK

10
RODEN STREET, WEST MELBOURNE

17
BAYVIEW CRESCENT II

5
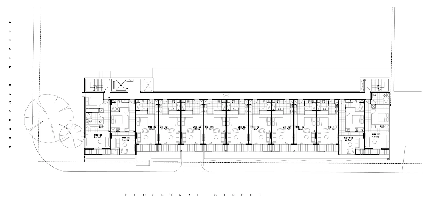
FLOCKHART STREET, ABBOTSFORD
7
SOUTH ROAD, HAMPTON EAST

10
KILGOUR PLACE, GEELONG

8
PARK STREET, BRUNSWICK

9
COTHAM ROAD, KEW
7
PLENTY ROAD, PRESTON

4
HAROLD STREET, SANDRINGHAM

3
OWENS AVE, GLEN WAVERLEY

3
SOUTH ROAD, BRIGHTON EAST
